Orientado hacia el poniente tal como lo están en Teotihuacan, Tlatelolco o Tenayuca los principales edificios considerados “Axis Mundi” o “Centro del Universo”, el Templo Mayor de Tenochtitlan se estima comenzó su construcción hacia 1325 d.C., año (aproximado) de la fundación de esta ciudad.
Pie de Plano/Israel Hernández Ortega
Diciembre de 2025
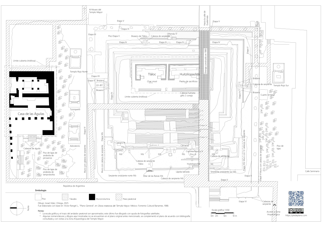
El Templo Mayor se desplantaba sobre una gran plataforma en la cual se apoyaban cuatro cuerpos horizontales sobrepuestos, con un par de escalinatas orientadas al poniente. Todo ello remataba en su extremo superior con un par de adoratorios dedicados a los dioses Tláloc, al norte y Huitzilopochtli, al sur.
Desde 1325 d.C. y hasta la destrucción por parte de España en 1521 d.C. el edificio fue ampliado mediante siete etapas constructivas, una sobre la otra, una actividad muy común en la época prehispánica.
En este texto se abordará brevemente una descripción de lo anterior, pues el objetivo es simplemente que quienes lean estas líneas puedan observarlas de manera general y gráficamente en un plano digital. La descripción de la Zona Arqueológica del Templo Mayor, su simbolismo, materiales constructivos, los edificios colindantes al recinto sagrado, entre otros aspectos, se abordarán en otra publicación.
Sobre el plano arquitectónico del Templo Mayor
El plano digital ha sido elaborado con base en el libro Obras Maestras del Templo Mayor (la bibliografía completa se encuentra al final de esta publicación), el cual ha sido complementado con imágenes satelitales de Google Maps y fotografías personales de la dicha zona arqueológica. Su uso es meramente académico.
Se encuentra disponible en formato PDF y PNG y lo podrás descargar gratuitamente dando clic en los siguientes enlaces.

Si te es de utilidad y deseas realizar alguna donación para poder continuar con nuestro trabajo, lo puedes hacer en el siguiente enlace:

Etapa I
No se ha encontrado actualmente vestigio alguno debido a que fue construida de manera estimada hacia 1325, a la par de la fundación de la ciudad de Tenochtitlan, con materiales perecederos. Es muy posible que se encuentre por debajo de la Etapa 2 visible el día de hoy.
Etapa II
Aproximadamente 1390 d.C. Es la etapa más antigua excavada y mejor conservada. Actualmente se encuentra visible y protegida por una estructura tridimensional (tridilosa) debido al buen estado de conservación de la pintura. En esta fase son visibles los dos templos que en su momento coronaban a todo el edificio: Al norte, el adoratorio a Tláloc y al sur el de Huitzilopochtli.
En la entrada del adoratorio del Dios del Agua se aprecia una escultura recostada con la cabeza viendo hacia un lado, conocido como chac-mool, que todavía conserva sus pigmentos azul, rojo, amarillo, blanco y negro. Frente al espacio correspondiente con Huitzilopochtli, adoratorio sur, se localizó una piedra de sacrificios modelada en tezontle, bajo la cual se hallaron cuchillos de sílex y algunos restos óseos.

Etapa III
Año estimado 1431 d.C. En esta fase el Templo Mayor fue ampliado considerablemente en sus dimensiones a su vez que cubrió por completo la etapa previa. En esta fase constructiva destaca el hallazgo de ocho esculturas reclinadas sobre las escalinatas del lado de Huitzilopochtli.


Etapa IV
Alrededor de 1454 y 1469 d.C. Por su complejidad, se ha subdividido en Iva y IVb. Hacia estos años la población mexica se encuentra en su máximo esplendor, por lo que en la Etapa IV el Templo Mayor es ampliado nuevamente de manera considerable en sus cuatro costados. Por otro lado, destaca la existencia de objetos decorativos como cabezas de serpiente, ubicadas en los costados norte y sur del recinto sagrado, flanqueadas por un par de braseros. En el costado norte es posible observar un brasero casi completo, protegido por un techo de lámina pequeño (1.70mX1.70m aprox.).
También son destacadas un par de serpientes, una al norte y otra al sur, con cuerpo ondulante elaborado a base de mampostería de tezontle unido con argamasa; sus cabezas, por el contrario, fueron labradas en basalto. Este par de ofidios se localizan sobre la plataforma poniente y flanqueaban las escalinatas del acceso principal. Son visibles sobre el andador de la calle República de Argentina.
Finalmente, y no por ello menos importante, se señala que en esta etapa se localizó la Coyolxauhqui sobre la misma plataforma mencionada en el párrafo anterior.




Etapa V
1482 d.C. De esta penúltima etapa lo único que queda posiblemente es la gran plataforma sobre la que se desplantó el Templo Mayor. Aunque, de acuerdo con Eduardo Matos Moctezuma, es probable que el edificio conocido como “La Casa de las Águilas”, al norte del recinto, sea también de esta quinta fase constructiva.

Etapa VI
Esta etapa cubrió por completo a la anterior y de ella sólo se han identificado parte de la plataforma sobre la cual se asentó el edificio. Cabe señalar que la esquina más visible de esta fase es la que se encuentra inmediatamente al ingresar a la Zona Arqueológica del Templo Mayor, donde es posible observar un muro con cabezas de serpiente elaboradas con la técnica de “cabezas clavo” empotradas a lo largo del paño.
También es posible identificar parte de la escalera al frente de la plataforma con alfardas bastante robustas con forma de talud en su base y, marcadas con unas molduras horizontales, un segundo tramo superior con una cara menormente inclinada (escarpio). Dicha escalinata se puede apreciar desde la entrada general al Museo y Zona Arqueológica del Templo Mayor, pues se encuentra pasando los torniquetes de acceso, a espaldas de la maqueta reconstructiva del Templo Mayor.


Etapa VII
Es la fase constructiva terminal del Templo Mayor y en general de todo el recinto sagrado de Tenochtitlan, por lo que estuvo en contacto directo con las huestes españolas y, en consecuencia, fue la que mayor destrucción sufrió.
Fuentes:
- López Luján, Leonardo, y Michelle De Anda Rogel. «Teotihuacan en México Tenochtitlan: descubrimientos recientes, nuevas perspectivas.» Estudios de Cultura Náhuatl. Volumen 54. 2017. https://nahuatl.historicas.unam.mx/index.php/ecn/article/view/77838.
- López Luján, Torres y Montúfar. «Los materiales constructivos del Templo Mayor de Tenochtitlan». Estudios de Cultura Náhuatl. Volumen 34. 2003.
- Matos Moctezuma, Eduardo. Tenochtitlan. Ciudad de México: El Colegio de México-Fondo de Cultura Economica, 2006.
- Víctor Rangel L. «Plano General» en Obras Maestras del Templo Mayor. México: Fomento Banamex, 1988.
- Museo y Zona Arqueológica del Templo Mayor.

Este obra está bajo una licencia de Creative Commons Reconocimiento-CompartirIgual 4.0 Internacional.


Deja un comentario