Planos estructurales

Este tipo de planos son indispensables para la construcción de un proyecto arquitectónico, pues en ellos se muestran las diferentes medidas y materiales constructivos que le darán soporte a la edificación. La información plasmada es de carácter técnico. Se describen con texto, además, las características generales y particulares de todos los materiales propuestos, así como de su correcta ubicación de acuerdo con la normatividad y la propuesta arquitectónica.

Anuncios
Anuncios
Anuncios

Los planos estructurales contienen información gráfica y textual de la propuesta constructiva que da soporte a la edificación. Si bien no existe una cantidad mínima de planos que se deban elaborar, sí hay requisitos indispensables que deben contener.

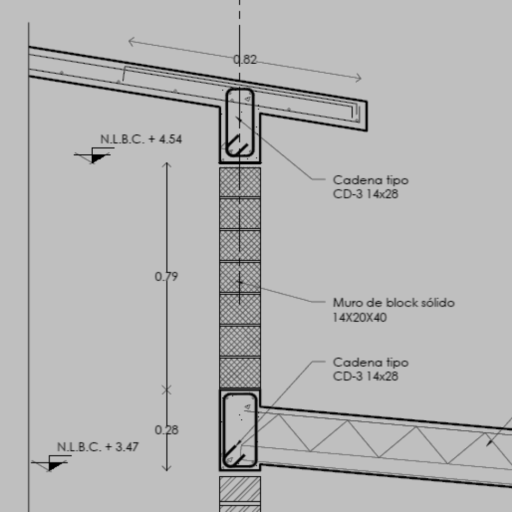
Gráfico 1. Elaboración propia. Ejemplo de un plano tipo estructural.

1


La planta se recomienda dibujarla preferentemente a escala 1:50 y debe contener:

a) Ejes estructurales acotados
b) Castillos, columnas, cadenas/trabes esquemáticos
c) Tipo de losa y su armado; en el caso de vigueta y bovedilla se dibujan los ejes de las viguetas con su separación real; si es losacero, se indica su colocación en función del sentido longitudinal y el calibre.
d) Etiquetas y líneas de corte
e) Alzados longitudinales de trabes, preferentemente dibujadas a un costado de la planta y en el sentido correspondiente
f) Llamadas y/o notas

2


Especificaciones gráficas

Son dibujos individuales de cada uno de los componentes estructurales, se elaboran a escala 1:10 o 1:15 y, en caso de ser demasiado grande el objeto a dibujar, se recomienda 1:20.

La información que deben mostrar esencialmente es:
a) El dibujo en sección transversal con el tamaño real (a escala)
b) Cotas
c) Nombre y tipo del componente. K-1, K-2… para castillos; C-1, C-2… para columnas; T-1, T-2… para trabes; Z-1, Z-2… para zapatas, entre otros.
d) Indicar el armado: cantidad de varillas longitudinales y transversales.

Anuncios

3


Cortes estructurales

Se elaboran preferentemente a escala 1:50; si la escala es 1:20 o 1:15, pueden fragmentarse auxiliándose con la línea de corte.

Debe contener:
a) Ejes estructurales correspondientes con la planta
b) Niveles y cotas
c) Nomenclatura de los diferentes materiales y/o componentes constructivos
d) Nombre del corte «Corte A-A´, Corte B-B´…» mismos que necesariamente deben corresponder con las líneas de corte plasmadas en la planta.

4


Detalles constructivos

Es el dibujo que integra dos o más especificaciones, además de algunos otros materiales constructivos. Los detalles se elaboran a una escala que permita su clara comprensión, normalmente a 1:15 o 1:20.

Se componen por:
a) Eje estructural de referencia
b) Dibujo de armados
c) Cotas y niveles
d) Nombres de cada uno de los materiales o componentes constructivos
e) Nombre del detalle, mismo que debe corresponder con el colocado en las llamadas, plantas y/o cortes estructurales.

Anuncios

5


Notas particulares

Son textos y/o esquemas gráficos que indican especificaciones o procedimientos constructivos.
Las notas se colocan en función de la propuesta estructural. Por ejemplo, si la estructura es a base de muros de carga, se indican las propiedades que debe tener la mampostería, el tipo de mortero, proporciones, separación máxima de las juntas, resistencia a la compresión del concreto para los castillos y cadenas.
En el caso de las varillas corrugadas, se debe colocar una tabla que indiquen los diferentes diámetros, áreas y dobleces.

Estas notas pueden colocarse en la solapa o en algún lugar del plano.

6


Pie de plano y solapa

La solapa y el pie de plano son esenciales, ya que en él se muestran los datos generales del proyecto, tales como: superficies construidas, propietario, simbología, notas generales y particulares.

En el caso del pie de plano, éste permite identificarlo fácilmente gracias a las distintas claves de plano.
Pese a lo anterior, el pie de plano y la solapa se ha limitado, por la mayoría de estudiantes, a colocar solamente el escudo de la escuela, su nombre y la fecha.

Anuncios
Anuncios
Anuncios
Licencia de Creative Commons
Este obra está bajo una licencia de Creative Commons Reconocimiento-CompartirIgual 4.0 Internacional.

Deja un comentario